Leave a Message

Thank you for your message. I will be in touch with you shortly.

239 Waverly Avenue
239 Waverly Avenue
239 Waverly Avenue
239 Waverly Avenue
239 Waverly Avenue
SEE ALL PHOTOS
239 Waverly Avenue
239 Waverly Avenue
239 Waverly Avenue
239 Waverly Avenue
239 Waverly Avenue
Sold

239 Waverly Avenue

239 Waverly Ave, Brooklyn, NY 11205

$3,650,000

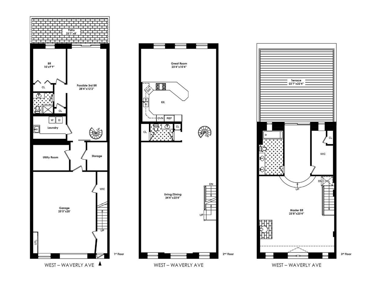
Absolutely exquisite, historic 3-story carriage house in Clinton Hill, Brooklyn, the former home of comedian Chris Rock in the 1990s who did wonderful renovations to the property while retaining the superb original details. Built in 1901, this gorgeous 3-story, 25-foot-wide building is one of a pair of Beaux-Arts-style carriage houses faced with Roman brick with limestone trim, with mansard roofs and slate shingles, designed by Escher & Evans for the horses of wealthy coopers Lowell and Henry Palmer. The unique space has been featured extensively in media, from Architectural Digest to Elle Décor, for its striking beauty and perfect blend of old world charm and modern luxury. Wherever you look you’re sure to appreciate and be impressed by such pristine original details such as wood beams, metalwork, exposed brick, stained glass windows, and soaring 12-foot ceilings. Renovations have added modern conveniences including central air conditioning, a full laundry room, built-in barbecue on the patio, and a decked roof terrace that is your private urban oasis. Other highlights include a spiral staircase connecting all levels, 23-foot-wide master suite with skylights, a huge walk-in closet and private deck access perched on the upper level, capacious closet space throughout, and the elusive NYC perk of being above a private 2-car garage. Currently configured with 2 or 3 bedrooms and 2 and a half baths, the layout is extremely versatile and can easily accommodate your particular needs. The ultimate backdrop for entertaining a crowd is the enormous open-plan living and dining room that is stunning and loft-like. The expansive contemporary chef’s kitchen with a big breakfast bar, eating and sitting areas inspires culinary creations. This home is designed with the highest standards and is truly one of a kind.

4
beds

4
baths

3,500 Sq.Ft. LIVING AREA

Rado Varchola

Rado Varchola

Features & Amenities

Interior

  • total bedrooms4
  • Total bathrooms4
  • full bathrooms3
  • half bathroom1

Area & Lot

  • Status Sold
  • Living Area3,500 Sq.Ft.
  • MLS® IDRLS16696356
  • TypeTownhouse
  • NeighborhoodBrooklyn

Financial

  • Sales Price$3,650,000

Brooklyn

Explore

Let’s Find Your Dream Home

Get assistance in determining the current property value, crafting a competitive offer, writing and negotiating a contract, and much more. Contact me today.

Follow Me on Instagram